Authentiek Karakter met Modern Comfort

Maart 2025

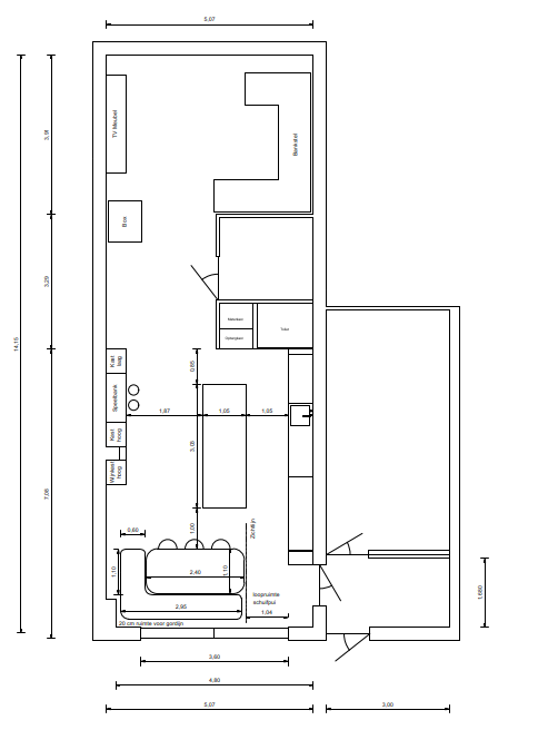
Doel

Voor deze twee-onder-een-kapwoning in Hoogeveen bestond de wens om een aanbouw aan de achterzijde te realiseren. Omdat er nog geen duidelijk beeld was van het eindresultaat, zijn renders en visualisaties ingezet om de plannen inzichtelijk te maken. Deze beelden geven een realistisch gevoel bij de nieuwe ruimte en laten zien wat de aanbouw betekent voor de bestaande vertrekken en de sfeer van de woning als geheel.

Resultaat

Na het uitwerken van meerdere renders en visualisaties hebben de bewoners een veel beter beeld gekregen van hoe de ruimtes eruit zullen zien, inclusief de samenhang tussen kleuren, materialen en meubels.

Previous
Previous

Woningtransformatie in Hollandseveld

Next
Next

Woning renovatie Hoogeveen